Dunham Public Library

Whitesboro, NY

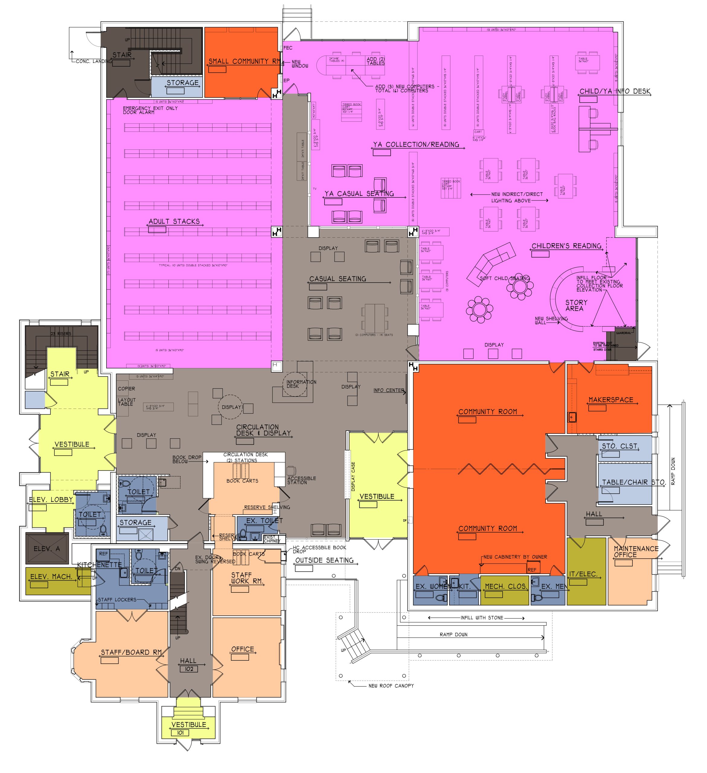
THE PROJECT

As library consultant, HKK provided library master planning services to develop schematic floor plans and concept sketches of the proposed renovations to the c. 1874 Dunham House and a new second floor addition to the existing one-story 1987 library building. Phase I was the reconfiguration of the existing Dunham House for administrative use. Phase II included renovation of limited areas on the first floor providing a new circulation desk, computer area, new toilet rooms and new finishes at the stack area and meeting rooms. Phase III is the new second-floor addition that will provide new adult meeting and computer spaces, an adult reading room, café, accessible toilet rooms and outdoor terrace. Future phases include exterior work to address site and storm water management and the design of a roof canopy over the main entry to reinforce the main building entrance and building identity, and the balance of the first floor.

Master planning:
2020-2021.

Phase I completed:
2022.

Construction cost:
$412,000.

Phase II completed:
2024.

Construction cost:
$300,000.

Phase III construction:
2025.

Budget:
$1,400,000.

Drawings ©Holmes▪King▪Kallquist & Associates, Architects